Mitsubishi Estate Company, Limited, Mitsubishi Corporation Urban Development, Inc., Sekisui House, Ltd., and Mitsubishi HC Capital Inc. announce that construction of Osaka Dojimahama Tower (hereinafter "the Project"), a building under development by the four companies at Dojimahama 1-chome, Kita-ku, Osaka, was completed on Monday, April 15, 2024. The companies marked the completion with a ceremony on Friday, April 19. The building's retail zone is scheduled to open in April, followed by the hotel and a sightseeing observatory in July. As a project to rebuild the Osaka Mitsubishi Building, long a symbol of the region, the Project was advanced with the goal of creating a new landmark to serve as symbol of the "city of water" Osaka, integrated into the surrounding waterside space with consideration of its regional and historic nature. The building will be reborn as a multi-purpose building that encompasses offices, a hotel, and a retail zone with 32 floors above ground and a total floor area of 67,000m2. By offering new work styles and one-of-a-kind experiences, the building will further enhance the appeal of its surroundings and will strengthen Osaka's international competitiveness.
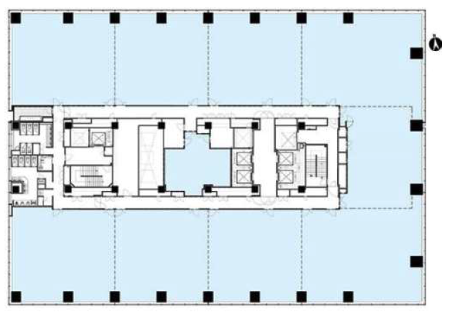
・Column-free spaces of about 1,750m2 per floor accommodate varied layouts.
・Low-E double-pane windows*1 and electrical power from effectively renewable energy sources take the environment into consideration.
・A lineup of retail and wellness spaces contributes to the well-being of diverse people.
・A variety of retail shops on the lower floors and a sightseeing observatory offering panoramic views of Osaka on the 16th floor are scheduled to open.
・A childcare facility and a health examination center support diverse work styles for office workers.
・The hotel serves as the flagship hotel of Candeo Hospitality Management, Inc. (hereinafter "Candeo Hotels").
・All 548 guest rooms, the largest number of guest rooms in the Candeo Hotels chain, offer magnificent views of Osaka.
・Sky Spa, one of the world's highest open-air baths, offers views from 135 meters above the ground.
・Emergency power supply, tide preventive plate, disaster readiness stockpile warehouse, etc. minimize the risk of business interruption from disaster.
・A wide pedestrian space along Midosuji Avenue creates a continuous, high-quality space for activity.
・Redevelopment of Dojima Park and development of the wharf connecting to Dojima Park create waterside activity and strengthen disaster readiness functions.
 
															・Standard floors feature rectilinear, column-free spaces of about 1,750m2 to accommodate varied needs and can be partitioned into up to nine sections.
・Located at the junction of Osaka/Umeda Station, a key northern hub in the central Osaka area; Nakanoshima, a symbol of the "city of water" Osaka; and Midosuji Avenue, the "Main Street" of Osaka, the area is well suited to a variety of industries as a place where business, retail, and culture thrive. The south side offers fantastic views of Midosuji Avenue and Nakanoshima.
・On the 16th floor, the Midosuji Presentation Gallery (tentative name) is scheduled to open around July 2024 as a sightseeing observatory available to all. In addition to a wooden deck terrace with panoramic views of Midosuji Avenue and Nakanoshima, an indoor cafe and conference room with views are available. The space is available to rent for events. The aim is to create a relaxation spot for workers, local visitors, and the community.
 
																	
Office standard floors

View from high-rise office floors and sightseeing observatory (southeast)
・Natural ventilation and Low-E double-pane windows*1 reduce the load on air conditioning.
・Greening and dry mists along Midosuji Avenue will provide a neighborhood cool spot.
・The building adopts a CO¬2-free electric power menu, derived from effectively renewable energy sources. Trackable non-fossil fuel certificates with attached attribute information support the RE100 initiative.
・In collaboration with Coca-Cola Bottlers Japan Inc., the site adopts a "Bottle to Bottle Recycling Circulation" scheme that recycles PET (polyethylene terephthalate) bottle waste from the Project site into new plastic bottles, and will promote sustainable resource recycling initiatives.
*1 Low-E double-pane windows: These windows enclose an intermediate layer of dry air between two sheets of plate glass and employ a heat-shielding, high-insulation metal film coating to enhance thermal insulation and heat insulation performance against sunlight, including ultraviolet and infrared rays, without impeding transparency. This prevents the inflow and outflow of heat to create comfortable workplaces and reduce utility expenses.

Dry mist

Low-E double-pane windows
The 1st to 3rd floors will feature four variety-rich stores and facilities offering food, beverages, and merchandise, creating an enjoyable space for area visitors, workers, local residents, hotel guests, and other visitors to Osaka Dojimahama Tower. A childcare facility and a health examination center will support diverse work styles in the building.
 
																	A cafe featuring freshly ground and brewed coffee and handmade sweets is fused with a specialty shop featuring alcoholic products carefully selected by the liquor shop Komatsuya.
Visitors can enjoy a luxurious moment in a lavish space. 
 
																	Under the slogan "FamilyMart, Where You Are One of the Family," FamilyMart aims to be an indispensable spot that goes beyond convenience while aligning itself closely to the community and connecting to customers like family.
 
																	PING's shop in Osaka marks the retailer's first shop in western Japan and first directly managed store anywhere in the world.
In addition to fitting customers with the latest gear, the shop offers a wide range of accessories and collections unique to a directly managed store.
 
																	The medical and health examination facilities operated by The Association for Preventive Medicine of Japan, a leading occupational health institution, are relocating from the town of Minamimori to be reborn as the Well-Being Osaka Dojima health examination center. The facility is equipped with gender-segregated areas and the latest medical equipment.
・Candeo Hotels, which creates unprecedented emotion by combining quality and convenience under the concept of "the world's only 4-star hotels," will open Candeo Hotels Osaka The Tower. The hotel will welcome guests with 548 rooms, the largest number of guest rooms in a hotel of the chain.
・A key feature of the hotel is the Sky Spa, one of the world's highest open-air baths offering views from the top floor of the building 135 meters above the ground. Together with a sauna featuring an auto-löyly, it will deliver a one-of-a-kind experience unique to the site.
・All guest rooms, situated on the 18th to 31st floors, offer wonderful views of Osaka.

Guest room

Sky Spa
・Number and size of guest rooms: 548 rooms; approx. 24-75m2
・Scheduled opening date: July 17, 2024
・Reservations for accommodation are currently accepted
Hotel official website: https://www.candeohotels.com/ja/osaka-tower/
・The site is equipped with an emergency power supply (operable for approximately 72 hours). Electrical rooms are located on the 3rd floor and higher as a precaution against flooding, while tide preventive plate prevent inundation and minimize the risk of business interruption.
・The hotel contributes to regional disaster recovery through temporary accommodation spaces for persons unable to readily return home, a disaster readiness stockpile warehouse, multilingual information on disasters, transportation, etc. in the lobby, and free Wi-Fi and smartphone charging.
・The Project will offer a wide pedestrian space along Midosuji Avenue, creating an open space aimed at continuity from shops to the pilotis area and Midosuji Avenue. The connecting passageway on the west side of the site serves as a walking path offering a sense of seasonal change and creating a new greenery network that connects to Dojima Park.
・The Project will redevelop the adjacent Dojima Park to create a new waterfront space. It will also redevelop the wharf connected from Dojima Park*2, forming a network of water and greenery and creating new waterside activity along the Dojima River, appropriate to the "city of water" Osaka.

Free Wi-Fi, power sources, and disaster information will be provided at the entrance during emergencies.

Redeveloped Dojima Park
*2 About Dojimahama Wharf: The wharf was improved to contribute to urban revitalization in the Dojimahama 1-chome district, a special urban regeneration district.
Following development, the wharf was transferred to Osaka Prefecture (the Nishi Osaka Flood Control Office).
 
															 
															| Building name | Osaka Dojimahama Tower | 
| Location | 1-1-27 Dojimahama, Kita-ku, Osaka (residential display) | 
| Access | 2 minutes on foot from Oebashi Station on the Keihan Nakanoshima Line 4 minutes on foot from Yodoyabashi Station on the Osaka Metro and the Keihan Main Line | 
| Site area | 3,571.88㎡ | 
| Total floor area | Approx. 67,000㎡ | 
| Main uses | Offices (4F–15F), sightseeing observatory (16F), hotel (17F–31F), shops (1F–2F), medical and health examination facilities (3F), parking (B1–B2) | 
| Number of floors | 32 above-ground stories, 2 basement stories, 1 penthouse story | 
| Height | Approx. 143m | 
| Structure | S construction; partial SRC construction in basement | 
| Building owner | OM4 Specific Purpose Company *TMK (specific purpose company) invested in by Mitsubishi Estate Company, Limited, Mitsubishi Corporation Urban Development, Inc., Sekisui House, Ltd., and Mitsubishi HC Capital Realty Inc.*3 *3 Mitsubishi HC Capital Realty Inc. is a wholly owned subsidiary of Mitsubishi HC Capital Inc. | 
| Project management contractor | Mitsubishi Estate Company, Limited | 
| Design supervisor | Joint design entity consisting of Mitsubishi Jisho Design Inc. and Takenaka Corporation | 
| New construction contractor | Takenaka Corporation | 
| Start of new construction | October 1, 2021 | 
| Completion | April 15, 2024 |